Проектирование и строительство
Главным признаком проектов комбинированных домов является сочетание стандартных стен из камня с мансардой и более легким материалом
В этом случае потребуется полноценное основание, но нагрузки будут меньше, чем при строительстве каменного дома с двумя этажами. Важно понимать, что цена за фундамент – это 1\3 общего бюджета, поэтому удастся значительно сэкономить. Часто для дерева не нужна дополнительная отделка, в проекте на втором этаже удастся обойтись без облицовочных материалов
Еще одна особенность проектирования – это уменьшение периода усадки готового здания. Чтобы отделочные материалы не деформировались, деревянное жилье «усаживается» до двух лет. В здании с каменным цокольным этажом можно жить после завершения строительства и отделки первого этажа.
Получится сэкономить финансы и на теплоизоляции, так как для такого жилья нужно меньше материалов, если сравнивать с кирпичным зданием. В отличие от деревянной постройки интенсивная обработка составами против влаги не нужна.
Хозяин такого жилья получает небольшие затраты, интересный внешний вид, технологически оптимальное здание, где материалы находятся «на своем месте». Чтобы защитить деревянную конструкцию от влаги, необходимо соблюдать значительное расстояние от грунта. Огнеупорный камень без отделки считается не очень удобным для проживания, поэтому используется для «технических» комнат.
Комбинированное здание выглядит оригинально. Дерево смотрится добротно, отштукатуренный цоколь создает интересный дизайн постройки. Фасад можно сделать в одном стиле или обыграть пропорции с помощью комбинации дерева с камнем.
Распространено даже возведение комбинированного трехэтажного здания с террасой и балконом со значительной площадью. Над большой террасой можно принимать солнечные ванны. Для повышения комфортности его дополняют гаражом. Популярным считается стиль шале. Крыша тогда создается двускатная, ее края сильно выступают.
Особенности сочетания материалов
Рассмотрим подробнее, как именно сочетаются материалы в проектах комбинированных домов из камня и дерева. Часто нижний этаж сделан из бетона, камня, а второй – деревянный. Цоколь возводят из камня (искусственного или натурального), кирпича, монолитной железобетонной конструкции, газоблоков, пеноблоков, каркасно-щитового сооружения. Последняя технология строительства считается экономичной и облегченной, поэтому сооружение не рекомендуется возводить выше трех этажей. На первом этаже размещается гараж, обеденная зона, котельная, камин.
Жилые помещения находятся на 2, 3 этаже, они сделаны из дерева. Древесина проходит противопожарную и антикоррозийную обработку, она эстетична, функциональна. Для отделки хватает лакового покрытия, также устанавливаются дополнительные декоративные элементы.
Типовые проекты
Обычно хозяева возводят здание, основываясь на согласованных проектах загородных комбинированных домов. Коррективы вносятся при согласовании проекта с работниками строительной компании.
Дома шале

Шале считается классикой комбинированных домов и коттеджей из дерева и камня. Такой вариант распространен в горных европейских местностях. Родиной шале считаются Альпы. Такой дом экологичен, что подходит для семей, где есть люди, склонные к аллергическим реакциям и дети. Обладает покатой крышей, деревянным вторым этажом, цоколем из камня, обработанного светлой штукатуркой.
Из камня и дерева
Долговечный и респектабельный тип – комбинированный дом, сделанный из камня и дерева. Он сочетает хороший микроклимат, натуральные материалы, прочность. Сочетание камня и дерева образует интересный внешний вид, легко реализуются самые смелые дизайнерские решения. Натуральный камень делает здание крепким, а дерево позволяет свободно дышать.

Комбинированный дом из кирпича и бруса можно сделать в русском стиле. Скаты крыши будут покруче, мансарда – выше. Высокие комнаты гораздо удобнее, покатые крыши плохо справляются со снежными сугробами, характерными для наших зим.

Из кирпича и дерева
Цокольный этаж можно сделать из кирпича, что смотрится довольно эстетично. Для цоколя в комбинированном доме из кирпича и дерева не нужна внешняя отделка.

Экономичные проекты жилья из пеноблоков и дерева
Комбинированные дома из блоков и дерева в России очень распространены. Они считаются бюджетными и долговечными. Внешний облик жилью можно придать любой, за счет большого выбора отделочных материалов.
Такое здание обладает всеми достоинствами комбинированных домов, но имеет еще и дополнительные преимущества:
- Оба материала считаются легкими, поэтому мощное ленточное основание не нужно. Газобетон является хрупким, облегченный фундамент следует укрепить армированием во время укладки;
- Блоки и дерево имеют высокие теплоизоляционные качества, поэтому не требуется серьезного утепления;
- Из-за большого размера составляющих первый этаж строится очень быстро. Газобетон и пенобетон не вызывают затруднений при строительстве, просто режутся, усадка отсутствует. Отделку фасада и внутренних комнат можно выполнить сразу после возведения стен;
- Из-за того что стены из строительных блоков ровные, декоративная отделка может быть любой. Применяют отделочный камень, штукатурку, декоративные панели. Самым популярным методом оформления считается отделка жилья сайдингом.

Бюджетные варианты
Есть две возможности для экономии финансов при проектировании и строительстве комбинированного загородного дома при ограниченном бюджете:
С помощью уменьшения площади строения снижаются затраты на стройматериалы и отделку. К примеру, вес жилья будет не очень большим, поэтому сложное основание не понадобится. Для маленьких комбинированных домов не нужна сильная система отопления, интенсивная подготовка участка;
Экономия расходов на стройматериалах – довольно опасный выбор
Важно обговорить с профессионалами, архитекторами-дизайнерами вариант дешевого проекта комбинированного дома. Снижаются расходы на строительство при выборе материалов экономкласса
Каркасные конструкции и газоблоки заметно снизят затраты хозяев, позволяя им дополнительно сэкономить деньги для других нужд.

Это интересно: Пластиковые окна ламинированные — изучаем досконально
Достоинства комбинированных домов
Комбинированный дом – это гармоничный симбиоз солидности и аристократичности камня с природным теплом дерева, обеспечивающий экстерьеру жилья замечательный внешний вид, а интерьеру – неподражаемую атмосферу, пропитанную уютом и комфортом. Однако это далеко не все, чем данные постройки заработали отличную репутацию и обеспечили себе широкую популярность.
К основным преимуществам таких домов можно причислить следующее:
- Экономия. Из кирпича (иногда из глиняного самана, речного ракушечника или шлакоблоков) возводится только первый этаж, а второй выполняется из дерева. Подобное архитектурное решение обеспечивает сравнительно невысокий вес конструкции и, как следствие, отсутствие необходимости в очень дорогом фундаменте. Более того, затраты на строительство второго этажа также с использованием камня, как правило, гораздо выше, нежели затраты при использовании деревянных материалов.
- Высокая пожаробезопасность. Очевидно, что дерево – горючий материал, однако строительство первого этажа, где обычно располагаются кухня, камин, котельная, из камня существенно снижает риск возникновения возгорания, а при появлении такой необходимости упрощает локализацию очага.
- Долговечность. Кирпич обладает крайне высокой стойкостью к разрушению под воздействием влаги и отличается механической прочностью. В свою очередь, лесоматериалы и древесные композиты, изготовленные на производстве «Витославицы», также обладают высокой стойкостью к негативным влияниям окружающей среды и механическим нагрузкам, однако снижение частоты и интенсивности подобных воздействий лишь увеличивает ресурс эксплуатации дома.
- Всесезонный комфорт. Комбинированные дома из камня и дерева хорошо удерживают тепло. В то же время последний материал способствует стабилизации влажности в помещении, благодаря чему в помещениях достигается комфортный микроклимат.
Перспективы
С развитием технологий в XXI веке, комбинированные постройки — уже не просто камень и дерево. Многие строительные компании и девелоперы предлагают все новые разновидности таких домов.
Плюс активно применяются в комбинированном строительстве каркасно-брусовые технологии. И если первый этаж пока традиционно «каменный», то для второго и последующих этажей используются инновационные материалы. Например, теплоизоляционные панели, которые тоже являются экологически чистым материалом и не подвержены влиянию погодных условий, механическим нагрузкам.
В целом можно сказать, что комбинированные постройки из камня и дерева — оптимальный вариант для творческих покупателей, кто любит все необычное и нестандартное. Здесь всегда есть большой простор для фантазии.
Типовые проекты комбинированных домов
Большинство современных владельцев загородной недвижимости предпочитает строить дома на основе уже согласованных типовых проектов. Необходимые изменения вносятся на этапе согласования архитектурного проекта со специалистами фирмы.
Комбинированные дома шале
Классический комбинированный дом из камня и дерева шале в современном понимании – с покатой крышей, вторым этажом из дерева, и светлой штукатуркой каменного цоколя.
Швейцарское шале «под ключ» с низкими скатам крыши, традиционной отделкой камнем и штукатуркой
Панорамные окна – универсальное украшение для подобных домов
Сочетание ленточных балконов, камня и дерева создают аутентичность постройки
Комбинированные дома из камня и дерева
Традиционный, долговечный и очень респектабельный внешне вариант – жилища из дерева и камня, радующие хозяев сочетанием прочности, приятного микроклимата и натуральных материалов.
Строгий архитектурный проект с намёком на стиль шале идеально смотрится в российских широтах
Масштабный дом, сочетающий дерево, камень и штукатурку – лаконичный и яркий вариант
Современная архитектура в домах из камня и дерева
Комбинированные дома из кирпича и дерева
Кирпичный цоколь выглядит более интересно в визуальном плане, кроме этого, подобные жилища не требуют внешней отделки, что экономит хозяевам время и финансовые ресурсы.
Облицовочный кирпич, штукатурка и деревянные элементы создают удачную стилизацию в современном доме
Дом из дерева и кирпича с сайдингом в процессе постройки
Лаконичный бюджетный вариант постройки
Экономичные проекты жилья из пеноблоков и дерева
Востребованный вариант строительства на российском рынке – долговечные и экономичные проекты из пеноблоков и дерева. Широкое разнообразие отделочных материалов позволяет создать практически любой внешний облик подобному зданию.
Небольшой комбинированный дом из дерева и пеноблоков
Покрытие пеноблоков штукатуркой и стилизация с помощью рам из тёмного дерева придаётпростому проекту элегантность
Панорамное окно и небольшие декоративные элементы придают самому скромному дому свою изюминку
Энергосберегающие проекты с применением комбинированного бруса
Дома из клееного бруса по праву можно считать энергосберегающими. Это обусловлено технологией его изготовления, которая предусматривает клееное соединение двух деревянных ламелей и уложенного между ними пенополистирола. Комбинированный брус появился на рынке стройматериалов сравнительно недавно, однако сразу стал популярным. Можно выделить плюсы и минусы применения утепленного бруса.
Так выглядит клееный комбинированный брус для постройки дома
Достоинства:
- Теплоизоляционные характеристики в сравнении со стандартным клееным брусом выше более чем в два раза, а значит снижаются затраты на отопление;
- Он более легкий, чем обычная древесина и, соответственно, значительно уменьшается нагрузка на фундамент;
- Исключены трещины в процессе эксплуатации за счет использования просушенной древесины, а его внешний интерьер соответствует натуральному дереву;
- Его цена ниже стоимости обычного клееного бруса примерно на 30%.
Недостатки:
- Недолговечность внутреннего утеплителя, заменить который невозможно;
Конструкция стены дома из комбинированного бруса
- Требуется дополнительная вентиляция в доме, поскольку сам утепленный брус воздухонепроницаем;
- Легко набирает влагу и долго сохнет;
- Внутренний утеплитель привлекателен для грызунов;
- Не является в полной мере экологически чистым;
- Уступает по стоимости строительству дома на основе деревянного каркаса;
- Для монтажа необходимо специальное оборудование, что исключает постройку своими руками.
Данную информацию о свойствах утепленного бруса необходимо учитывать при выборе проекта. Однако основные его потребительские качества, такие как низкая теплопроводность, в большинстве случаев являются решающими при выборе технологии.
С появлением утепленного бруса проекты смешанных домов стали еще более привлекательными для потребителя. Таким образом, проектирование комбинированных домов и воплощение готовых проектов в жизнь вызывают только положительные отзывы, поскольку этот способ строительства позволяет реализовывать практически любые дизайнерские идеи и создавать свой собственный интерьер жилища.
Как создается каменный пол?
Облицовка пола каменными плитами требует большого труда. Во-первых, плиты сами по себе тяжелы
Во-вторых, выбирая материал для пола, следует обращать внимание на устойчивость дома, чтобы не создавать нагрузку на этажи. В-третьих, плиты должны быть пригнаны друг к другу плотно, без зазоров

Требуется достаточная сила, чтобы каменная плита была прикреплена к полу с помощью раствора. Раствор подбирается индивидуально под каждый материал. Всю эту работу лучше доверить профессионалам.
Пол в ванной комнате — 80 фото Ламинат на пол — 80 фото Деревянный пол: 65 фото новинок Плитка для пола — 90 фото дизайна Как покрыть пол паркетом — 50 фото дизайна Отделка пола в квартире — 45 фото
Этапы строительства домов из камня и древесины
Как и строительство обычных деревянных и кирпичных домов, возведение комбинированных зданий можно разделить на следующие этапы:
- Разработка проекта будущего дома. При его составлении в первую очередь рассчитывают площадь дома, предназначенную непосредственно под жилье. Затем отмечают, что будет расположено на первом, а что на втором этаже дома, а также учитывают все другие пожелания заказчика.
- Фундамент будущего дома, его установка. Обычно для комбинированных домов используют ленточный заглубленный фундамент. Это делают потому, что древесина легче, по сравнению с любыми кирпичами.
- Строительство первого этажа из камня. Постройка его ничем не отличается от возведения обычного дома из кирпичей. Но сейчас в современном строительстве все реже используют обыкновенный кирпич или камень.
Все чаще в комбинации камень + дерево вместо камня кладут газобетон или другой ячеистый бетон. При абсолютно одинаковой прочности кирпича, бетона и камня именно газобетон имеет более высокие показатели по теплоизоляции. - Строительство перекрытий между первым и вторым этажом. Вид выбранного перекрытия для стен зависит от размера дома, его площади. Если она будет не более 100 кв. метров, то в этом случае перекрытие делают по лагам. Вся тяжесть стен из дерева при этом распределяется на стены из камня. Если предполагаемая площадь будет больше, то тогда перекрытия делают, заливая монолит или используя железобетонные плиты. Обязательно надо сделать гидроизоляционный слой из рубероида или пенополиуретана.
- Строительство второго деревянного этажа.
Классический проект комбинированного дома со вторым деревянным этажом
В чём преимущества комбинированных зданий
Перед любым будущим владельцем дома однажды поднимается вопрос: бревенчатый или кирпичный дом строить, что будет дешевле и выгоднее?
У дерева есть немало недостатков, которые трудно отрицать: оно горит, быстро разрушается при высокой влажности, его будут постепенно разрушать грызуны и насекомые. При этом оно же является самым экологичным материалом, и жить в деревянном доме всегда комфортно.
- Нижняя часть здания из кирпича позволяет сделать его во многом более защищённым: на первом этаже располагаются котельная, кухня, каминный зал и другие помещения, которые могут представлять повышенную угрозу возгорания. В отличие от деревянного дома, кирпичное здание намного меньше боится огня, поэтому будет ниже риск, и менее строгими будут требования безопасности.
- Дом «низ – кирпич, верх – бревно» будет более выгодным экономически: дерево стоит существенно дешевле, поэтому можно значительно сэкономить на строительстве второго этажа. Кроме того, для него необязательна внутренняя и внешняя отделка, так как деревянные бревенчатые стены и так красиво смотрятся. Верхний этаж менее требователен к утеплению, бревно хорошо держит нагрев.
- На верхнем деревянном этаже можно разместить спальни и другие жилые комнаты. В них всегда будет красиво, а приятная атмосфера с запахом дерева нравится очень многим. При этом планировка может быть самой разной, бревенчатые стены можно дополнять брусовыми или иными перегородками.
- Комбинация материалов позволит придать сооружению интересный вид, такие конструкции открывают широкий простор для дизайна. К примеру, на первом этаже можно сделать панорамные большие окна, кирпич отлично сочетается с самыми разными видами отделочных материалов.
Конструктивные особенности комбинированного дома
Дома из кирпича и бревна имеют ряд особых черт: необходимо правильно скомбинировать материалы, чтобы дом стал единым целым, а не набором разрозненных элементов. Для кирпичного здания требуется мощный фундамент, толщина стен зависит от использования дома и климатических условий региона. Нижний этаж чаще всего утепляют и отделывают по технологии вентилируемого фасада: многослойная конструкция не нарушает экологичности дома, при этом она позволит хорошо беречь тепло.
На стыке кирпича и бревна стены требуется обязательно проложить гидроизоляционным слоем, обычно для этого используется рубероид, который укладывается в несколько слоёв. Чтобы объединить конструкцию в одно целое, используются арматурные штыри: они закладываются в кладку, а затем на них закрепляется деревянный материал стен второго этажа. Такая конструкция обеспечивает прочность конструкции, здание не начнёт рассыпаться, даже если на него будет оказываться серьёзное воздействие силами природы.
Ещё несколько требований к строительству комбинированного здания:
Проектов комбинированных зданий в сети представлено огромное множество, хотя сегодня таких домов возводится не более 10% от общего количества зданий. Можно подобрать готовый проект в сети, а можно заказать авторскую разработку с учётом индивидуальных требований к загородному дому.
Оригинальные проекты комбинированных домов с каждым днем завоевывают все большее количество поклонников. И это закономерно. Сочетание различных материалов дает возможность , обустроить в индивидуальном стиле. Практика такого строительства показывает, что применение этой технологии существенно снижает .
Оригинальный проект комбинированного дома
Основной особенностью, которая отличает комбинированный загородный дом от прочих, является то, что первый этаж делается из более прочных материалов, а следующие этажи выполняются из более легких. Так, например, для основания здания успешно используют:
- блоки, различного состава, в том числе пенобетон, газобетон, арболит, поротерм и другие;
- дом из натурального камня.
Для постройки верха здания, как правило, применяют:

Другим направлением в строительстве домов комбинированного типа является применение альтернативной отделки здания, полностью построенного из однородного материала, декоративными деталями. Это могут быть, как отдельные элементы, так и комбинированный фасад. В некоторых случаях использование буквально маскирует исходный стройматериал, применяемый при монтаже.
Конструктивные варианты комбинированных домов
Несмотря на разнообразие фасадного декора, строительство комбинированных домов должно соответствовать главному принципу: 1 этаж камень 2 этаж дерево. Он обеспечивает зданию необходимую прочность и создает условия для комфортного проживания на втором этаже. Еще одна задача, решаемая сочетанием материалов – снижение трудоемкости и стоимости строительства.

Тот, кто не хочет тратить лишние средства на внешнюю отделку, поступает разумно. Сочетание камня и древесины оптимально не только из конструктивных соображений, но и с позиций эстетики. Поэтому не прячьте за отделкой то, что само по себе смотрится идеально.
Примером может служить особняк, построенный в нарочито грубоватом сочетании природного камня и бревен. Он полностью соответствует канонам стиля кантри.

Из суровой горной местности ведет свою родословную дом в стиле шале, придуманный альпийскими пастухами. В нем также была использована идея совмещения прочного камня и теплого дерева.
Жизнь в горах требует максимальной надежности и функциональности. Поэтому первый уровень шале всегда строится из прочной горной породы, которая не боится снеговых завалов, камнепадов и воды. Второй этаж предназначен для создания комфорта и уюта. Для этих целей не найти лучшего материала, чем натуральная древесина.

«Родовой признак» всех зданий, построенных в стиле шале – широкие свесы кровли, защищающие стены от проливных дождей и тающих сугробов.
Современные комбинированные дома из камня и дерева чрезвычайно разнообразны, поскольку выбор стеновых материалов очень широк. Если вас не устраивает рваный камень или плоский известковый «плитняк», то стройте первый этаж из пеноблоков. Они достаточно прочные и при этом такие же теплые, как натуральная древесина.

Готовясь к стройке, не забывайте о том, что дома из пеноблоков и дерева требуют надежной связи между первым и вторым этажами. Ячеистый бетон – материал довольно хрупкий. Поэтому он не удержит стальные анкера, фиксирующие опорный брус второго уровня.

Грамотное решение для такой конструкции – заливка по пеноблочным стенам монолитного пояса из железобетона. Он повышает пространственную жесткость здания и позволяет надежно зафиксировать анкерные болты.
Внешний вид стены из пеноблока не слишком выразителен. Поэтому ее лучше зашить блокхаусом или сайдингом, уложив пароизоляцию и слой минватного утеплителя за фасадную облицовку.
Для комбинированного строительства коттеджа можно использовать арболитовые блоки. Они прочнее пенобетона, не такие хрупкие и очень теплые. Отделка арболитовых стен нетрудоемкая, поскольку на них отлично держится любая декоративная штукатурка.

Второй этаж можно построить из строганного бруса. Этот материал хорошо сохраняет тепло в жилом этаже и не требует финишной облицовки.

Если вам нужен трехуровневый комбинированный дом из кирпича и бруса, то стройте его по такой схеме: цокольный технический этаж – монолитный железобетон, первый уровень кирпич, второй – каркас или сруб.
Говоря о каркасном варианте стен второго этажа, отметим, что он не только сэкономит ваши деньги, но и позволит гибко менять внутреннюю планировку, адаптируя ее под семейные нужды.

Каркас второго этажа вы можете скрыть за отделкой. Другой интересный вариант — специально выделить ее, превратив в элемент фасадного декора. Для этого лучше всего подходит фахверк – старинная каркасная система, у которой стойки, балки и поперечные связи выходят на фасад.

Серьезная проблема всех коттеджей – сырость на первом этаже. Комбинированный дом решает ее просто и функционально. Нижний этаж отводится для подсобных помещений. Здесь можно обустроить котельную, баню, мастерскую и гараж. Спальни, санузлы, гардеробные, игровые комнаты и кухня размещаются на втором, более сухом этаже.
Как правильно стыковать дерево и камень
Подготовка площадки для монтажа первого венца
Как правило, стену из кирпича или блоков достаточно выровнять поверху слоем раствора толщиной 3–5 см, укреплённым стальной кладочной сеткой. При строительстве из теплоизоляционных пеноблоков необходим армопояс. Железобетонное усиление желательно также, если здание возводится на проблемных грунтах, — оно намного снизит вероятность появления трещин в каменных стенах над проёмами.

Открытые ригели из массивного бруса и стропила с фигурно опиленными концами подчеркнут близость здания к архитектурной традиции. Для подобных конструкций желательно использовать клеёную древесину, не подверженную короблению и растрескиванию
Подготовка первого венца
При строительстве из брёвен низ окладного венца плоско протёсывают на ширину чуть более межвенцового паза, а затем ровно простругивают полученную плоскость. Первый венец обязательно подвергают двукратной обработке антисептиком. Если применяется профилированный брус, с его нижней поверхности желательно сострогать замковые выступы. Подкладная доска должна быть только из лиственницы.
Анкеровка
Нужно ли крепить окладной венец к верхним рядам кладки анкерами (закладными шпильками)? В целом это, конечно, увеличит прочность и жёсткость коробки дома. Однако расчёты и практика показывают, что без трудоёмкой анкеровки можно обойтись — с точки зрения ветроустойчивости коробки здания в ней нет необходимости.

Первый этаж этого энерго-эффективного каркасного дома оштукатурен в два слоя по стальной оцинкованной сетке, а второй — обшит фасадной доской, имитирующей брус. В итоге внешне здание неотличимо от комбинированного
Гидроизоляция
Каменная кладка, даже на высоте более 2,5 м от земли, увлажняется при косом дожде, поэтому между ней и окладным венцом необходимо проложить гидроизоляционный материал. Он же выполняет и функцию уплотнителя — сминаясь под массой бруса (брёвен), компенсирует мелкие неровности и препятствует продуванию стыка. Оптимальная гидроизоляция — стеклохолст, пропитанный битумом. Толщина материала должна составлять не менее 5 мм, его следует приклеить к основанию мастикой.
Междуэтажное перекрытие
Чаще всего устраивают перекрытие по деревянным балкам, которые укладывают на выступы стен первого этажа. Железобетонное плитное перекрытие (сборное или монолитное) нужно возвести до начала сборки деревянной части дома. При этом плиту следует теплоизолировать по контуру.



При монтаже коробки из клеёного бруса могут использоваться разные типы угловых соединений — традиционная чаша (а), «ласточкин хвост» (б) или скрытая шпонка (в); выбор зависит от конфигурации здания и пожеланий заказчика к облику фасадов. Как правило, первый венец ставят на подкладную доску из антисептированной лиственницы

Интегрированный в стену дымоход и облицовка натуральным камнем, фасадное остекление и крыша-крыло — подобные архитектурные элементы украшают здание, но значительно увеличивают расходы по смете и усложняют строительный процесс
Комбинированные строения
Кирпич или дерево? Этот вопрос не дает покоя далеко не первому поколению самостоятельных строителей. В пользу обоих решений есть масса убедительных доводов.
Достоинства кирпича
- Кладка исключительно прочна. В кирпичном доме можно не опасаться несанкционированного проникновения извне (по крайней мере, через стены); не боится он и ураганов, смерчей и прочих природных катаклизмов. Даже наводнение в кирпичном доме заставит лишь просушить стены, а вот брус или бревно с большой вероятностью поведет.
- Кирпичная стена — надежная основа для массивных верхних этажей. В этом случае строителю не нужно переживать, не станет ли масса перекрытий непомерной для несущих стен нагрузкой.
Достоинства бруса
В пользу строительного бруса можно привести не меньше аргументов:
Он обладает куда лучшими теплоизоляционными качествами. При том же тепловом сопротивлении стены можно сделать ее в 2,5 — 3 раза толще.

Строительство будет куда более быстрым: ведь конструктивный элемент имеет куда большие линейные размеры.
- Стены обладают великолепной паро- и воздухопроницаемостью. В деревянном доме не бывает душно или сыро.
- Наконец, дерево — просто-напросто очень красивый материал. Клееный или профилированный брус благодаря качественной обработке поверхности вполне может стать самостоятельным элементом дизайна.
Решение
Решение проблемы выбора может быть довольно простым: комбинированные дома из кирпича и бруса представляют собой строения, в которых стены от фундамента до межэтажного перекрытия возведены из кирпича, а над перекрытием — деревянным или железобетонным — возвышается выполненный .

На фото — комбинированный дом в процессе строительства.
Как правило, при этом существует функциональное разделение этажей:
- В кирпичной части строения остаются гараж, столовая, кухня, котельная, сауна и прочие помещения сугубо функционального и технического назначения.
- Спальни и рекреационная зона — гостиная, детская и т.д. — перекочевывают внутрь деревянной части дома.
Что в результате?
- Комбинированный дом из бруса и кирпича не боится наводнений. Во всяком случае, ущерб от них будет несопоставим с масштабом повреждений в цельнодеревянном доме.
- Кирпичные стены могут стать надежным основанием для монолитного или плитного железобетонного перекрытия, которое по ряду параметров удобнее, чем любой настил по деревянным балкам.
- Вместе с тем обитателям дома обеспечен максимум комфорта: они располагают всеми преимуществами деревянного строения.
Проект двухэтажного комбинированного дома
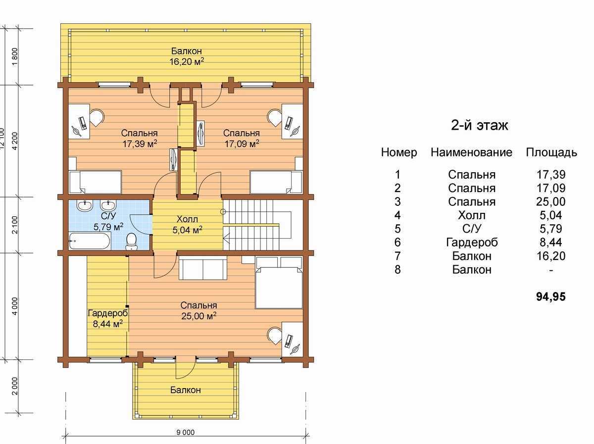
Представленный ниже проект дома рассчитан на проживание большой семьи. Общая площадь дома составляет сто девяносто три квадратных метров.
Размер постройки девять на двенадцать метров. Такие габариты позволяют произвести строительство дома по данному проекту на участке даже небольших размеров. Однако при планировке учитывайте необходимость возведения других построек: гаража, бани и прочих.


Для оборудования фундамента необходимо использование монолитных железобетонных свай. Здесь вы должны учитывать общую нагрузку, чтобы достичь максимальной устойчивости и надежности постройки.
В качестве материала для строительства первого этажа оптимально выбрать керамический блок. Этот современный материал позволяет сделать основание дома крепким, при этом сами стены будут прочным и эстетически привлекательным.
Второй этаж может быть возведен из клееного бруса. Он не такой тяжелый, как деревянный сруб, а теплоизоляционные его свойства давно доказаны.
Такая постройка будет значительно легче, чем , что позволяет снизить нагрузку на фундамент.
По традиции, все комнаты общего пользования в таком доме располагаются на первом этаже. Здесь вы найдете просторную гостиную, которая совмещена в проекте с кухней и столовой.
Кроме того, планировка первого этажа предполагает наличие отдельного кабинета для работы.
На втором этаже вы найдете три изолированные спальные комнаты. Вход в комнаты осуществляется через общий холл.
И первый, и второй этаж предполагают наличие места для отдыха. На первом этаже это просторная веранда, на втором – два полноценных балкона.
Хозяйственные комнаты можно удобно расположить на первом этаже. Здесь выделено место для подсобки и котельной. Здесь же имеется просторный гардероб.
Такой дом удобен в эксплуатации и каждому члену семьи здесь будет достаточно места.
Что касается внешнего вида нового дома, то он отвечает всем эстетическим требованиям. Такой дом будет выглядеть по-европейски современно и стильно.
Пристройка гаража или других надворных построек данный проект комбинированного дома не предполагает. Такого рода постройки лучше расположить в некотором отдалении от жилища.
Это позволит вам сделать ландшафтный дизайн органичным и привлекательным и не испортить внешний вид дома ненужными сооружениями рядом.
Во время строительства комбинированного дома нижний этаж изготавливается при помощи камня, а верхний сооружается из дерева. Подобная конструкция дает возможность полноценно реализовать все положительные стороны выбранных материалов и избежать появления их отрицательных черт.
Стили оформления комбинированных зданий
После окончания строительства переходят к отделочным работам. Оформить фасад дома можно, выбрав один из двух стилей:
- Единый стиль декора. При отделке фасада готового дома разница между этажами полностью закрывается при помощи отделочных материалов. Для этого применяют декоративную штукатурку или сайдинг.

Разные стили декорирования. При таком стиле второй этаж здания оставляют без изменения. Его просто покрывают слоем лака или краской. На первом этаже стены можно отделать при помощи кирпича, штукатурки, натурального или искусственного камня.
Какой бы стиль оформления для комбинированного здания ни был выбран, они оба способны придать дому красивый внешний вид и подчеркнуть все достоинства постройки.
Для постройки собственного комбинированного дома лучше всего обращаться к профессионалам. Для этого достаточно найти в интернете фирмы специализирующиеся именно на таком строительстве. При этом следует досконально изучить всю имеющуюся информацию, почитать отзывы и только потом сделать выбор в пользу той или иной компании. Специалисты выбранной компании не только помогут разработать или предложить готовый проект дома, учитывая все желания заказчика, но и в короткие сроки поставят дом на участке, сдав его под ключ.





























![Каменные дома [готовые проекты, строительство и как экономить?]](http://zhilfond-realt.ru/wp-content/uploads/4/4/a/44a839072126ee3484cd4fc3d7b45e9f.jpeg)



















